Kayou Nanning Mixcity

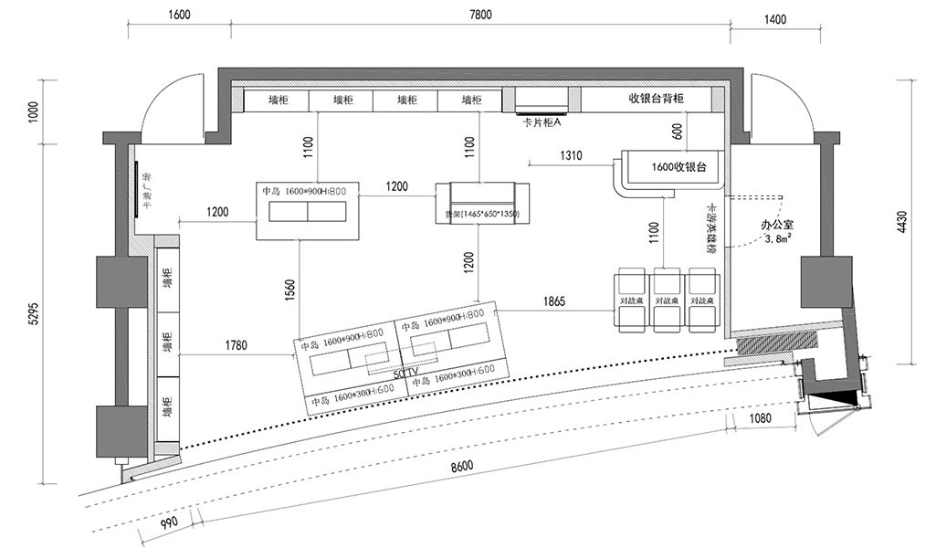
A wide, glowing proscenium trimmed with layered light lines frames the store, setting up a stage-like view of white interiors animated by bright‐yellow logos and candy-colour product blocks. Inside, two recessed wall bays—each edged with brushed-aluminium fillets—house full-height shelving for the brand’s trading-card series; low plinth drawers double as extra stock storage. A central pony-graphic island snaps apart into modular cubes, so staff can create demo clusters for weekend events. To one side, the L-shaped cash counter is accented by a neon-yellow band that folds into a built-in playmat drawer. Opposite, a “Hero List” wall overlays frosted acrylic logos on white stucco; magnetic frames hold weekly champion cards above four flip-top tables, whose nesting chairs stow flush under the surface for tidy resets after tournaments. 4000 K panel lights ensure even colour rendering across every display.





