Kayou LiuZhou Mixcity
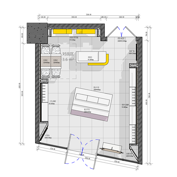
This compact 55 m² shop distils Kayou’s “open-joy” DNA into a crisp, gallery-white shell enlivened by sunshine-yellow logos and muted grey floor tiles. A chamfered storefront with LED-lined cornice frames full-height glass, drawing eyes to a My Little Pony totem that rotates new IP art each quarter. Inside, an angled island—its top in ultra-matte solid surface, plinth wrapped in pastel graphics—acts as both product catwalk and cash desk, freeing wall space for tiered shelving that appears to float inside brushed-aluminium niches. Track lights and 4 000 K grid panels wash merchandise evenly, while concealed strips under each shelf add a subtle “hover” glow to card boxes. At the rear, a 3.6 m² “Battle Zone” hides fold-flat tables in a pocket; unfold them and the hero-list feature wall becomes an instant tournament scoreboard with magnetic card frames. All fixtures clip into recessed power/data tracks, enabling overnight re-sets to match fast-moving trading-card trends.








